平整机轧辊在线擦拭除尘系统
1. 平整机轧辊在线抛光应用环境
随着不锈钢带或普碳双光面带产品的要求提高,用户对带材表面(光洁度、有无划痕)等重要指标也越来越高。我们知道:带材在平整过程中由于前面生产流程或多或少表面会被污染,那么就带来在平整过程中对轧辊的污染。这样产生两个后果:轧辊使用周期减少、带材表面污染。这样生产效率和成品率大大降低。鉴此,轧辊在线擦拭设备和除尘设备解决以上平整中的问题。

液压缸带动擦拭头做直线往复运动,气缸压紧的擦拭纱纸与辊面产生一定摩擦力,垂直作用于轧辊上。这样便可以达到擦拭轧辊的目的。抛下的杂尘通过除尘系统吸走。
该系统由上下擦拭装置(擦拭头、粉尘仓、气缸压紧装置、横移装置等、气动升缩装置)和擦拭控制箱两部分组成。擦拭控制箱内包含:Siemens PLC、24V5A电源、熔断器、空开及接线端子;控制箱操作面板上由上辊自动/停止/手动、下辊自动/停止/手动、系统正常指示灯、纱布夹紧/放松、压下/抬起、前进/后退等按钮和指示灯组成。
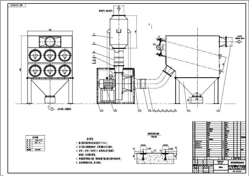
4. 除尘系统组成
除尘系统由除尘箱体、风机和除尘控制三部分组成。采用脉冲除尘法实现,环保整洁。


中文版
English
官方微信













阿里巴巴店铺