On-line Polishing and Dedusting System for the Roller
1. Application environment of roller on-line polishing for leveling machine
As the requirements of stainless steel belt or common carbon double light belt products are improved, the users are becoming more and more important to the surface of the strip, such as smoothness and scratch. We know that in the process of leveling, the surface of the strip will be polluted more or less because of the production process, which will bring pollution to the roller in the process of leveling. This produces two consequences: the reduction of the use cycle of the roll and the surface pollution of the strip. In this way, the efficiency of production and the rate of finished products are greatly reduced. In view of this, roller on-line cleaning equipment and dust removal equipment to solve the above problems in the leveling.

The hydraulic cylinder drives the wiping head to do straight reciprocating motion and cylinder pressure to wipe paper and roll surface to produce a certain friction force acts perpendicular to the roll. This can achieve the purpose of wiping the roll. The thrown dust is absorbed through the dust removal system.
The system consists of two parts: upper and lower wiping device (wipe head, dust bin, cylinder compression device, transverse shifting device, pneumatic lifting device) and wiping control box. Wipe the control box contains: Siemens PLC, 24V5A power supply, fuse, circuit breaker and wiring terminal; the control box panel comprises an upper roller automatic / stop / manual, and automatic / manual / stop system, normal light, gauze clamping / relaxation, pressure / lift, forward / backward buttons and indicator lights composition.
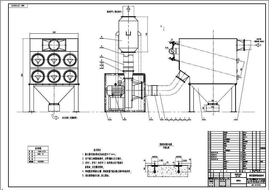
4. Composition of dust removal system
The dust removal system is composed of three parts: the dust collection box, the fan and the dust control. It is realized by pulse dedusting, and the environment is clean and clean.


中文版
English
WeChat













Alibaba Shop